
48
РУКОВОДСТВО ПОЛЬЗОВАТЕЛЯ РУССКИЙ
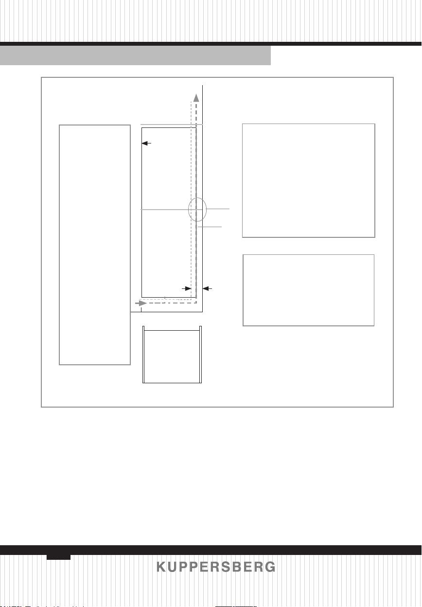
Встраиваемый холодильник
Контур
холодильника
мин. 30 мм
Где-то
в шкафу должен
быть предусмотрен
забор воздуха,
чтобы обеспечить
циркуляцию воздуха.
В этом примере
вентиляционное
отверстие показано
под холодильником.
В основании под
холодильником/
морозильником
необходимо
сделать вырез
и аккуратно закрыть
его с помощью
прилагаемой
вентиляционной
решетки.
В качестве
альтернативы
можно снять тонкую
часть плинтуса,
чтобы обеспечить
забор воздуха
(рекомендуемый
размер 600 x 10 мм).
Верхняя часть шкафа должна иметь
вентиляцию в комнату.
Рекомендуемый размер вентиляционного
отверстия: 500 x 40мм
Если мебель не позволяет забирать
воздух, необходимо предусмотреть
вентиляционное отверстие в плинтусе
или другие средства вентиляции для
обеспечения естественного притока
воздуха.
В задней части шкафа должно оставаться
место, позволяющее холодному воздуху
проходить через конденсатор.
Рекомендованно: 500х40мм
вид на задний вентиляционный зазор сверху
Хорошо виден открытый канал сза-
ди. Для правильной работы прибора
важно, чтобы верхняя часть корпуса
не была заблокирована. Глубина кана-
ла 40–50 мм является нормальной для
большинства устройств.
Внизу прибора необходимо наличие
вентиляционного отверстия; это по-
зволяет воздуху проходить через ком-
прессор и осуществлять процесс тепло-
обмена. В комплект поставки прибора
входит декоративная решетка, которая
аккуратно закрывает вентиляционное
отверстие. В качестве альтернативы
требуемый поток воздуха может быть
достигнут путем удаления тонкой сек-
ции плинтуса (минимум 600мм x 10мм).
Как правило, чем больше воздуха
может попасть и затем выйти, тем луч-
ше и эффективнее работает прибор.
Рис. 2
Добавить комментарий